CinéMayence Logo

Die ersten 15 Jahre – Baupläne

(Archiv/Stand: Oktober 2004)


1980-1990er Jahre In der Gründungszeit führte die Suche nach Räumen für ein Kommunales Kino durch Begehung von Gebäuden, Baustellen und (sehr) vielen Kellern.

Bauplan

Im Juni 1986 beauftragt Oberbürgermeister Fuchs das Hochbauamt mit einer Planerstellung für das Stadtkino im Keller des Dalberger Hof.
Im Mai 1987 wird der Plan (von Frau Backes, Hochbauamt) vorgestellt und findet große Zustimmung beim neuen Oberbürgermeister Weyel. Geplant war ein Kinosaal mit etwa 100 Komfortplätzen, ein Foyer und mehreren Nebenräumen (s. Bild rechts). Aber schon im Juni darauf eröffnet OB Weyel dem Verein, der Ausbau im Dalberger Hof sei z.Zt. nicht finanzierbar, am Standort solle aber festgehalten werden.

Nach der Kommunalwahl 1989 werden neue Standorte ins Spiel gebracht: Kasteler Reduite, Neutorschule. Die CDU sieht Lösung durch Einbeziehung in das Fernsehmuseum auf dem Gelände neben dem Südbahnhof (Markthalle, Lampenfabrik) in greifbarer Nähe.

1989 soll eine Interfraktionelle Arbeitsgruppe Lösungsvorschläge für das Proviantamt erarbeiten.
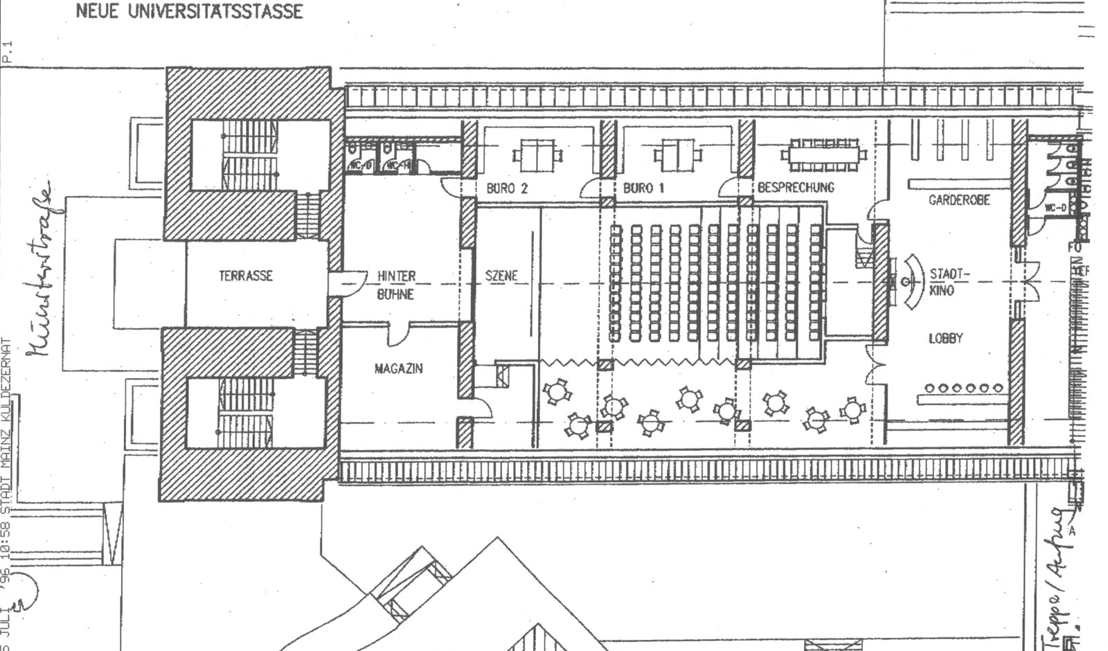
im Herbst 1990 einigt sich die Arbeitsgruppe auf ein rein kulturelles Nutzungskonzept für das Proviantamt. Das Stadtkino soll in Nachbarschaft zu den "mainzer kammerspielen" im Dachgeschoß untergebracht werden. Das Architekturbüro Ady Schmelz wurde mit einem Entwurf beauftragt.

Bild Proviantamt-Plan

Der Entwurf sah den Zugang in der Mitte des Gebäudes vor (in der Abb. rechts). Die Kammerspiele sollten im vorderen, das Stadtkino im hinteren Gebäudeflügel Platz finden (s. Abb. Planausschnitt). Der Plan sah neben dem Kinosaal mit knapp 150 Sitzen und einer Bühne u.a. ein Foyer, 2 Büros, 1 Besprechungszimmer und ein Lager vor.
Der Entwurf für den Haushalt 92/93 enthält aber keine Mittel für Baumaßnahmen. Der Nutzungszweck des Gebäudes wurde später umgewidmet.

1992 gab es Diskussionen über die Nutzung des ehemaliges City-Kino in der Spritzengasse. Alternativ wurden die Nutzung als Fernsehstudio, Stadtkino oder Kleines Haus des Theaters diskutiert. Letzteres wurde später realisiert.
Bild Capitol-Plan

2000 Zur Jahrtausendwende gab es dann wegen Kino-Insolvenzen bzw. Betriebsaufgaben plötzlich neue realistische Chancen. Für das Capitol und das City Kinocenter (ehemals Scala) im Bleichenviertel wurden neue Betreiber gesucht.


Im April prüfte das Kulturamt auf unsere Anregung hin die Übernahme des Capitol-Kinos. Da dort vor allem Nebenräume, wie sie ein Kommunales Kino benötigt, fehlten, wurden die Architekten 4Senkrecht mit einem Entwurf für ein entsprechende Umbaumaßnahme beauftragt (s. Bild rechts).

Während wir uns noch bei Kulturdezernent Peter Krawietz um eine Unterstützung für das Vorhaben bemühten, traten zwei Mitarbeiter des CinéMayence in den Mietvertrag für das Capitol ein.






Im Oktober 2000 legte die Arbeitsgemeinschaft Stadtkino e.V. einen Entwurf des gleichen Architektenbüros für die Entkernung der Schachtelkinos in der Hinteren Bleiche und Nutzung als Kommunales Kino in zwei Varianten vor.

Bild City-Kinos

Plan für die Umgestaltung des damaligen City Kinocenter in der Hinteren Bleiche (Variante 1)

In Variante 1 gab es einen großen und einen kleineren Kinosaal (zusammen ca. 220 Sitzplätze), in Variante 2 anstelle von Kino 2 einen multifunktionalen Veranstaltungsraum. Beide sahen eine Bistro/Bar und ein Foyer (statt Kino 3) mit Kassenbereich vor. Das frühere Kino 4 sollte Büro werden.
Nicht auf dem Plan sichtbar ist ein zentraler Projektionsraum auf einer höheren Geschossebene für Kino 1.

Während der Bemühungen um eine Finanzierung der Umbaumaßnahmen, trat ein neuer Betreiber in Verträge mit dem Eigentümer der Immobilie ein. Die Schachtelkinos – eine Bausünde der frühen 80er Jahre, um 3 Pornokino- und ein Programmkinosaal ("Atlantis"*) auf der kleinen Fläche unterzubringen – wurden bis heute beibehalten.

*Das "Atlantis", eine Filiale des Kinos "Harmonie" in Frankfurt, war und ist das einzige echte Programmkino in Mainz mit festem Spielplan und monatlich wechselndem Programm



Links auf weitere Jubiläumsseiten:

Startseite Jubiläum 2004: 10 Jahre CinéMayence - 20 Jahre Arbeitsgemeinschaft Stadtkino e.V.    
z.Bsp: Das Jahresprogramm 1998
Programmhöhepunkte aus 15 Jahren
Chronik der Standortsuche

Medienkultur jenseits von Kommerz und Einerlei
Bedeutung für Mainz als Medienstandort
Multimedia - Initiative
Immobilie gesucht!
Kulturpolitische Position zur Kinolandschaft

Seitenanfang - Top | CinéMayence Startseite